CONSTRUCTION OR LANDSCAPING PROFESSIONAL?
When you are under the pump, the reality of finding time and resources to design landscapes, CAD up your own landscape plans and select the right plants can be a pressure cooker.
DIY Designs are qualified, professional and experienced landscape designers and planting designers. We offer a range of garden design services you can tap into whenever you need help to complete the landscape design aspects of your projects. We're used to dealing with trade clients so we understand the importance of delivering on time, and to budget.
We offer a flexible range of design services to help you satisfy council, clients and the like, and to complete your NZ landscape design project to the standard you want to achieve.
Save your sanity, and let's talk!
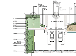
QUALITY LANDSCAPE PLANTING PLANS
We create quality landscape plans, landscape concepts, planting plans for resource consent and landscape plans for developers approval, at a very attractive price!
Our flexible landscape design service is suitable for New Zealand wide landscapers, garden contractors, builders, property developers and industry professionals such as architects.
FIXED PRICE PLANTING DESIGNS
We tell you in advance what it will cost so there's no nasty surprises and you can provide design fee estimates for your clients in a timely manner. Just tell us the brief and what you need the plans for, and we'll give you with a fixed price trade rate to prepare a landscape plan suitable for your purpose.
FULL DESIGN OR JUST A DRAW UP?
Just provide the site & property information, and we'll design it for you, or provide your own design markup. Either way, we'll put it into a professional landscape plan format for you, adding in the extra elements you may need help with such as plant selection and layout, planting notes and specifications.
WANT THE PLANS BRANDED WITH YOUR COMPANY DETAILS?
No problem, we can offer background support and can brand our professional landscape plans and garden concepts with your company logo and contact details.
No need to have a designer on staff!
LANDSCAPE PLANS TO SUIT YOUR NEED... AND BUDGET!
A basic landscape plan... or a fully developed landscape concept & planting plan? You choose the level of design detail required to suit your need, and the budget!
Want to talk?
Call us now on 0274 994 093.
We get that you're busy and maybe don't have time to talk right now so if you prefer, drop us a message via email and we will be in touch to see how we can help.
"EFFICIENT AND COST EFFECTIVE"
"Extremely helpful in completing a landscape design in an efficient and cost effective way to assist with our resource consent requirements. Highly recommend."
Larissa. Christchurch.






